Beschrijving

SHORT STAY. Bent u op zoek naar een tijdelijke woonruimte in Eindhoven? Dan is een short stay in Eindhoven een perfecte oplossing voor u!

Of u nu voor werk, studie of een andere reden naar Eindhoven komt, het is prettig om een goede thuisbasis te hebben. Door tijdelijk een woonruimte te huren bent u verzekerd van een eigen vaste locatie gedurende uw verblijf. Het is vaak goedkoper dan het huren van een hotel voor een aantal weken/maanden en het geeft u een prettig en huiselijk gevoel.

De short stay 2-kamer appartementen zijn instapklaar en volledig luxe gemeubileerd. Een appartement is voorzien van alle comfort en gemak. 

Locatie: Het appartement is centraal gelegen. Op loopafstand van winkelvoorzieningen, nabij Tue, Fontys, MMC en het Catharina Ziekenhuis. Op 5 autominuten van het centrum van Eindhoven en dichtbij alle uitvalswegen. Ook gunstig gelegen ten opzichte van de High Tech Campus, ASML, DAF en andere bedrijven.

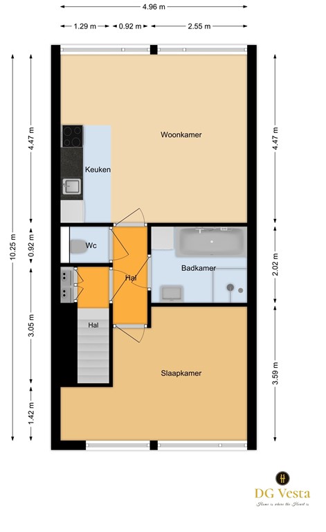
Indeling

Begane grond:
Gezamenlijke entree met bellentableau, brievenbussen en trapopgang naar de 1e verdieping.

Tweede verdieping

Via de galerij loopt u naar de gezamenlijke entree voor een tweetal appartementen. Eén op de eerste verdieping en één op de tweede verdieping. De gezamenlijke hal is voorzien van eigen meterkast, cv opstelling en internetmodem. Tevens kunt u vanuit de galerij naar de gezamenlijke berging en de afgesloten parkeergarage in de kelder.

Vanuit uw eigen voordeur treedt u de hal binnen welke toegang geeft tot de woonkamer, de slaapkamer en badkamer. Vanuit de hal hebt u ook toegang tot de deels betegelde toiletruimte met zwevend closet. Het gehele appartement is voorzien van luxe donker houten pvc vloer.

De woonkamer en eethoek is volledig ingericht en voorzien van smart tv, internet en strakke wand- en plafondafwerking. Tevens geniet de woonkamer van veel lichtinval middels de grote raampartijen en vrij uitzicht. 

De moderne en luxe open keuken is van alle gemakken voorzien. Namelijk een 4-pits gaskookplaat, RVS afzuigkap, combimagnetron, koelkast met vriesvak lades, vaatwasser en alle inventaris die u nodig hebt in de keuken. 

De ruime slaapkamer met luxe tweepersoons boxspring, ruime kledingkast en een strakke wand- en plafondafwerking en een ruimte voor een werkplek. De slaapkamer met hoge raampartij zorgt voor veel lichtinval in deze ruimte.

De geheel betegelde moderne badkamer is uitgerust met een regendouche en handdouche met thermostaatkraan, vaste wastafel met lades, wandkast, ligbad, designradiator en wasmachine.

Overige verdiepingen

In de parkeerkelder beschikt u over een eigen parkeerplaats afgesloten door een elektrische deur.
Tevens hebt u een zeer ruime berging welke u deelt met appartement 5-27.

Bijzonderheden

Algemeen:
- Huurprijs € 2.100,- p/m inclusief servicekosten, G/W/L & internet;
- Borg € 3.150,00 
- Maximale huurperiode 6 maanden;
- Luxe nieuw gemeubileerd en voorzien van alle inventaris;
- Woonoppervlakte ca. 47 m²; 
- Op loopafstand van winkelvoorzieningen, nabij Tue, Fontys, MMC en het Catharina Ziekenhuis; 
- Inclusief parkeerplaats in de afgesloten parkeergarage
- Op 5 autominuten van het centrum van Eindhoven en dichtbij alle uitvalswegen. Ook gunstig gelegen ten opzichte van de High Tech Campus, 
ASML, DAF en andere bedrijven;

Kenmerken